
Ulica: | Jozefa Hagaru 7 |
---|---|
Obec: | Bratislava-Rača |
Okres: | Bratislava III |
Kraj: | Bratislavský kraj |
Druh: | Byty |
Typ: | Predaj |
Typ bytu: | 1-izbový byt |
Na predaj: 1-izbový byt s terasou v projekte VERDENA – Kadnárova,
Krasňany
Ponúkame na predaj komfortný 1-izbový byt s priestrannou terasou v novostavbe projektu
Verdena - čerstvo skolaudovaný, situovanej v obľúbenej lokalite Krasňany. Byt sa nachádza na 3. nadzemnom
podlaží, orientovaný na východ, čo zabezpečuje dostatok ranného svetla a príjemnú klímu
počas dňa.
✨ ŠTANDARD BYTU (okrem kuchyne):
- laminátové podlahy vo svetlých tónoch
- interiérové dvere s moderným dizajnom
- kvalitná dlažba a obklady v kúpeľni
- kompletná kúpeľňová sanita
- predpríprava na klimatizáciu
Možnosť dokončenia bytu na kľúč vrátane kuchyne – podľa vašich predstáv.
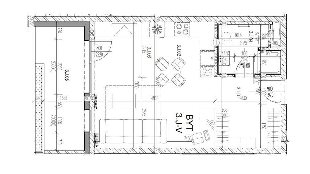
DISPOZÍCIA BYTU (37,32 m² + terasa 9,36 m²):
Možnosť dokúpiť **nadrozmerné vonkajšie parkovacie státie s možnosťou inštalácie
elektronabíjacej stanice** za 16 900 €.
LOKALITA A OBČIANSKA VYBAVENOSŤ:
- obchody (Lidl, Kraj), pekáreň, lekáreň, drogéria
- škôlky a základná škola
- kúpalisko Krasňany, detské ihriská
- MHD zastávky do 3 minút chôdze
PRÍRODA A RELAX:
- lesy Malých Karpát
- Železná studienka, Kamzík, Partizánska lúka
- cyklotrasy, bežecké chodníky, výletné miesta
- priestor na relax, šport aj víkendové prechádzky
PREČO SI VYBRAŤ BYT VO VERDENE?
- možnosť dokúpiť **nadrozmerné vonkajšie parkovanie s možnosťou inštalácie
elektronabíjacej stanice**
Neváhajte nás kontaktovať pre viac informácií alebo obhliadku.
Byt je kúpou voľný.
Cena: 197 900,- €
+421 917 511 798