
Ulica: | Broskyňová |
---|---|
Obec: | Rovinka |
Okres: | Senec |
Kraj: | Bratislavský kraj |
Druh: | Byty |
Typ: | Predaj |
Typ bytu: | 2-izbový byt |
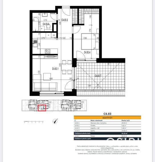
Ponúkame na predaj exkluzívny, strešný 2 izbový byt s veľkou terasou, v skolaudovanej novostavbe na Broskyňovej ulici v Rovinke. Nehnuteľnosť sa nachádza v projekte Rowink, ktorý je úspešným pokračovaním projektu Sunny Home. Tento krásny, výborne dispozične riešený byt sa nachádza na 4.NP zo 4 s výťahom a ponúka Vám 54 m2 úžitkovej plochy ´+ veľkú slnečnú terasu.
Byty sú vybavené teplovodným podlahovým kúrením, ktoré v letných mesiacoch zabezpečuje aj chladenie. Výhodou bytového domu je kotolňa na tepelné čerpadlo, čo zabezpečuje nízke náklady na bývanie. Spĺňame kritériá pre zaradenie do energetickej triedy A0.
Byty sa predávajú v štandarde.
Štandard:
Podlahy a obklady: Laminátové podlahy 8mm a prechodné lišty. Talianske obklady v kúpeľni.
Sanita: Obdĺžnikové moderné minimalistické vane Villeroy&boch. Sprchový set GROHE. Umývadlá Villeroy&boch s prepadom pre 1-otvorovú batériu. Páková umývadlová batéria GROHE. Dizajnové a pochromované sifóny. Villeroy&boch WC misa, sedátko s poklopom soft closing. Vaničky v sprchových kútoch VIMA. Posuvné dvere ISY.
Bezpečnostné dvere: Vstupné protipožiarne bezpečnostné dvere triedy 3 s 11 istiacimi bodmi.
Okná: Plastové Rehau s izolačným trojsklom.
TV a internet zabezpečený prostredníctvom optiky od Orange.
Výborná poloha projektu v rámci Rovinky. Okamžitá dostupnosť obchvatu. Len 7 minút autom do Mesta.
Kompletná občianska vybavenosť: Materská škola, základná škola, praktický lekár, veterinár, čerpacie stanice, pošta, pekáreň, drogéria, nákupné centrum...
Autobusová zástavka v pešej dostupnosti, hneď pri projekte.
Financovanie:
Financujúcou bankou projektu je VÚB Banka, projekt je taktiež nastavený v Tatra Banke, SLSP a ČSOB čo zabezpečuje výhodné a pohodlné financovanie Vašej novej nehnuteľnosti.
Zabezpečujeme kompletný finančný servis:
Vybavíme hypotéku žmurknutím oka - bez stresu a komplikácií
Nechajte to na nás. Celý hypotekárny servis je pre Vás bezplatný. Radi Vám poskytneme porovnanie aktuálnych ponúk a akcií všetkých bánk na slovenskom trhu ako aj výhody jednotlivých bánk, kde máme projekt nastavený, aby sme Vám ušetrili náklady, energiu a čas. Zahoďte starosti s vybavovaním hypotéky.
Náš tip pre Vás:
Vymeňte svoju starú nehnuteľnosť za novú a ešte ušetrite. S predajom Vám radi pomôžeme.
Pre viac informácií ma neváhajte kontaktovať na 0911 723 558 alebo na tomas.durian@newreality.sk